Beschrijving
RUIME SEMIBUNGALOW MET GROTE TUIN NABIJ HET HART VAN WASPIK!
Aan de rustige Duvenvoordestraat 19 in Waspik staat deze goed onderhouden semibungalow op een royaal perceel van maar liefst 633 m².
Een fijne woning voor wie comfortabel en gelijkvloers wil wonen, met volop mogelijkheden voor de toekomst.
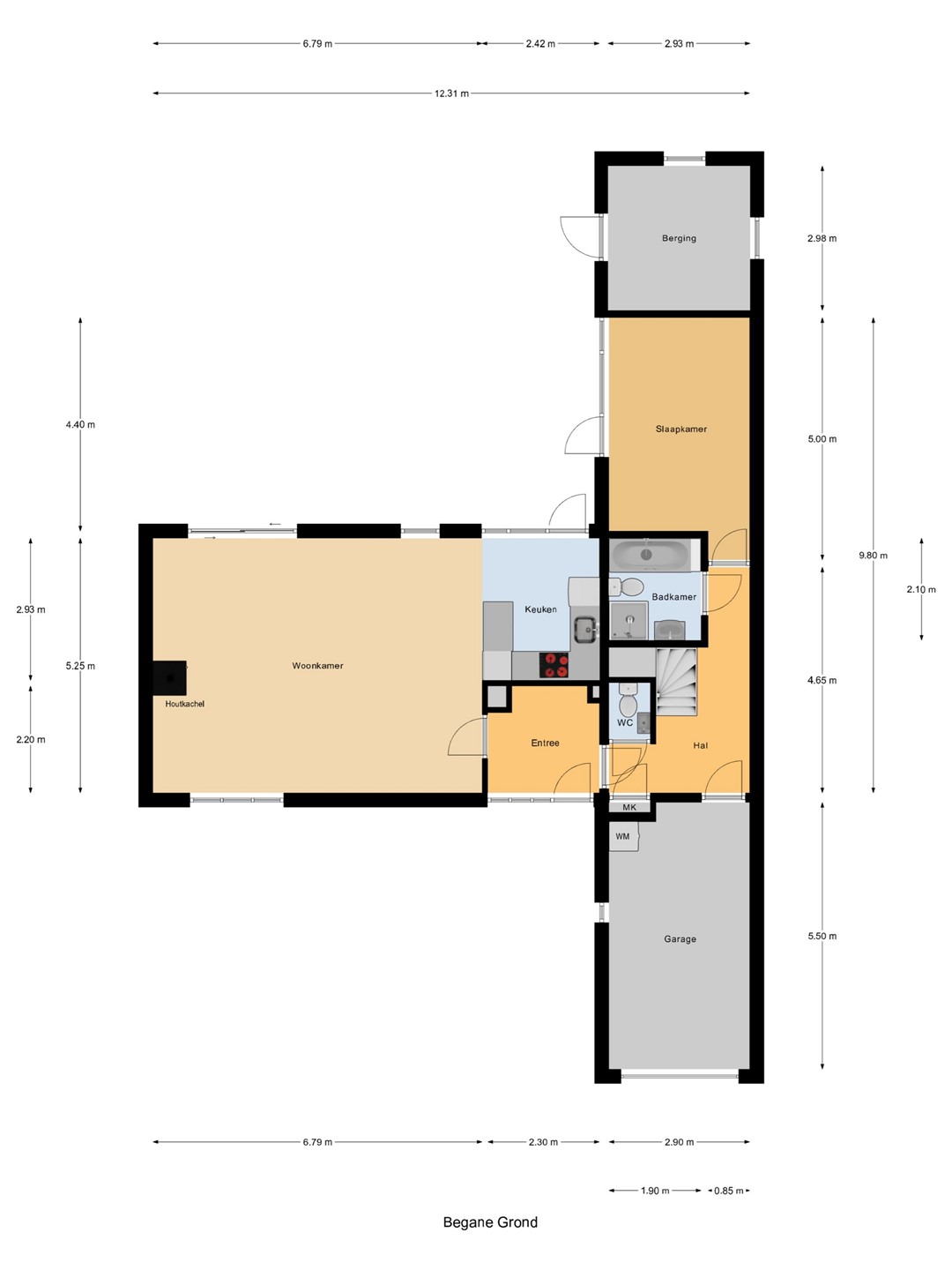
De woning beschikt over een woonoppervlakte van circa 95 m² en is gelegen in een prettige, rustige woonwijk nabij het centrum van Waspik, met diverse winkels en voorzieningen op korte afstand. Alles wat u dagelijks nodig heeft, ligt binnen handbereik.
De bungalow is door de jaren heen keurig bijgehouden en biedt daarnaast interessante uitbreidingsmogelijkheden. Dankzij het ruime perceel is het goed mogelijk om de woning verder uit te bouwen en volledig naar eigen wens aan te passen. Een groot pluspunt is de inpandige garage, die zich uitstekend leent voor een alternatieve invulling, zoals het realiseren van een extra slaapkamer of badkamer. Ideaal voor levensloopbestendig wonen of extra comfort.
Waspik staat bekend als een prettige en gemoedelijke woonplaats, met een dorps karakter, groot verenigingsleven, actief cultureel centrum, veel groen en een fijne gemeenschap. De ligging is gunstig ten opzichte van uitvalswegen richting onder andere Den Bosch, Tilburg, Waalwijk, Breda, Oosterhout en Gorinchem, terwijl u toch geniet van rust en ruimte.
Kortom:
Een verzorgde semibungalow op een ruim perceel, met volop potentie, in een fijne woonomgeving. Een woning met mogelijkheden, klaar voor de volgende stap.
Wonen waar voor u het leven goed is!